Standardized electrical control cabinet, with GRL busbar system
GRL designed a busbar-type standardized power distribution cabinet in the newly built Jinlong Automobile Factory, which is easier to maintain.
Overview
The automobile production line is divided into four links: stamping, welding, spraying and assembly. The electronic control system controls the stamping line, the welding line and the spraying line, in the automated workshop. When the production line fails, it can cause huge losses, because the value of the car is high.
Customer Challenge
- If the car production line breaks down, there will be huge economic losses because the production of cars is reduced. The electrical control cabinet must be easily serviceable.
- There are many electric control cabinet circuits for automotive products, and the lines are chaotic.
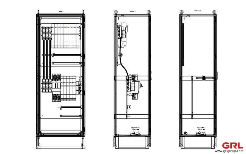
Solution
GRL has designed the electric control cabinet and used the busbar system in the project of « Kinglong Automobile Production Line ».
Plan 1:
The main switch is a molded case circuit breaker, and the main incoming line is a busbar system wiring board. The branch circuit is the fuse base. Fasten the busbars to the mounting plate, using the busbar brackets. All busbar system components are hung on copper bars to form a complete circuit.
Plan 2:
The main switch is a fuse-type isolating switch, and the branch switch is a bar switch. Connect the switch to the copper bar, using the busbar clips. Connect the upper and lower layers of the electrical control system with soft copper bars.
Application
- Busbar system distribution panels are compatible. All brands of circuit breakers can be used in the busbar system distribution cabinet, so the user can prepare enough spare components. When the power distribution cabinet of the busbar system fails, the workers can quickly find the spare components and complete the maintenance quickly.
- The design of the power distribution cabinet of the busbar system is simple and has fewer loops. When the power distribution cabinet fails, workers can quickly find the faulty line.
